- Центральный район, мкр-н Лебяжий (Ржавец).
Координаты: 53.931451, 27.465532.
Описание:
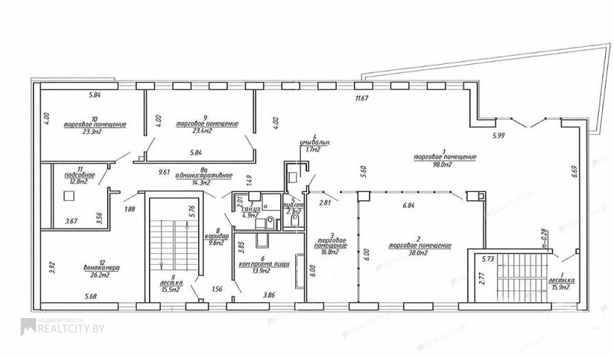
✅ Продается двухуровневое отдельно стоящее здание расположено рядом с проспектом Победителей и спортивно-развлекательным комплексом «Минск-Арена»
• торговые и административные помещения, комнаты для приема пищи, серверная, 2 поста СТО и 2 поста мойки;
• система кондиционирования, приточно-вытяжная вентиляция;
• стильный интерьер, небольшая терраса, санузлы на каждом этаже;
• горячее водосбнажение от собственной котельной;
• огороженная территория с парковкой и удобными подъездными путями.
✅ - На территории расположена мойка самообслуживания с навесом для пылесосов,
✅ - работают две площадки для комиссионных автомобилей на 80 и 110 автомобилей.
✅ - Расположен павильон, площадью 200 м кв на 2 бокса сто и шоурум (80 м кв)
✅ - здание многофункциональное подходит под: - офис, магазин, сфера услуг, автобизнес
Адрес: г. Минск, ул. Ольшевского 10, офис 2/А
E-mail: info@realtcity.by
Техподдержка
Тел: +375 (25) 772-05-61
E-mail: support@realtcity.by