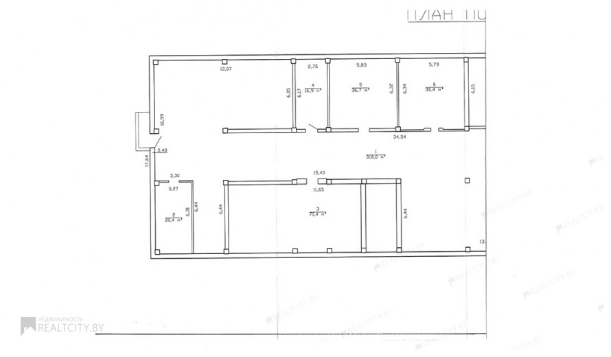
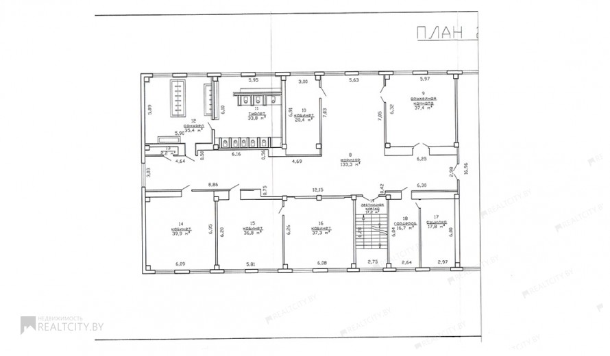
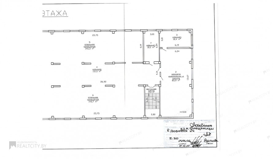
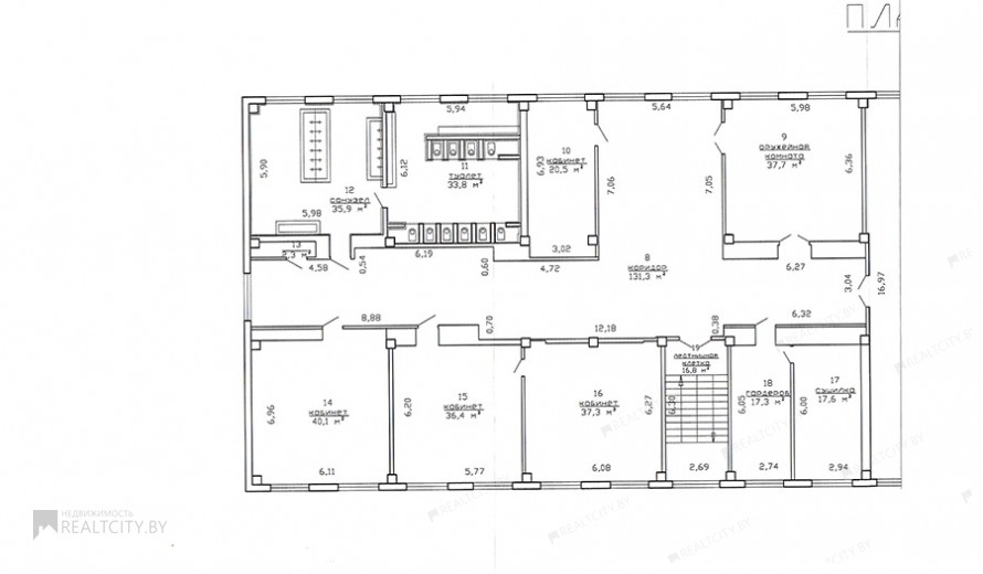
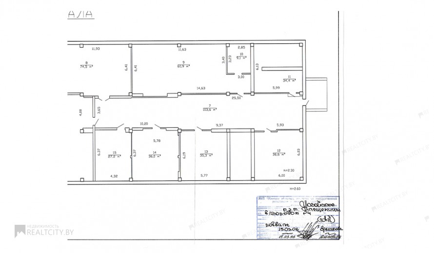
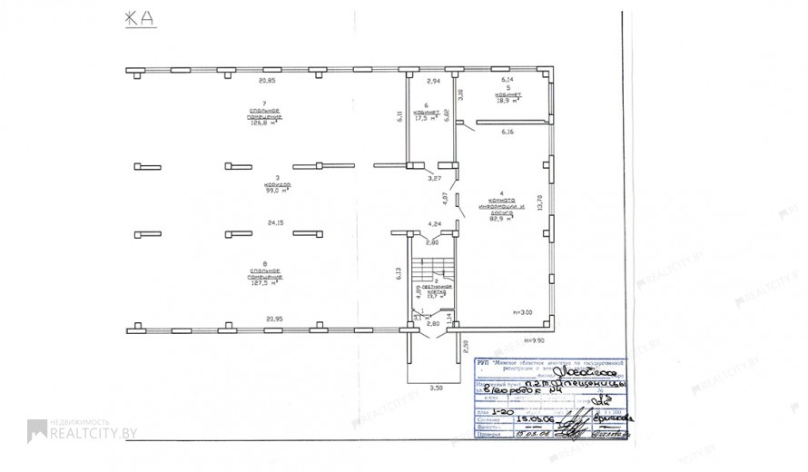
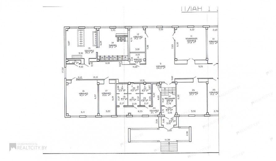
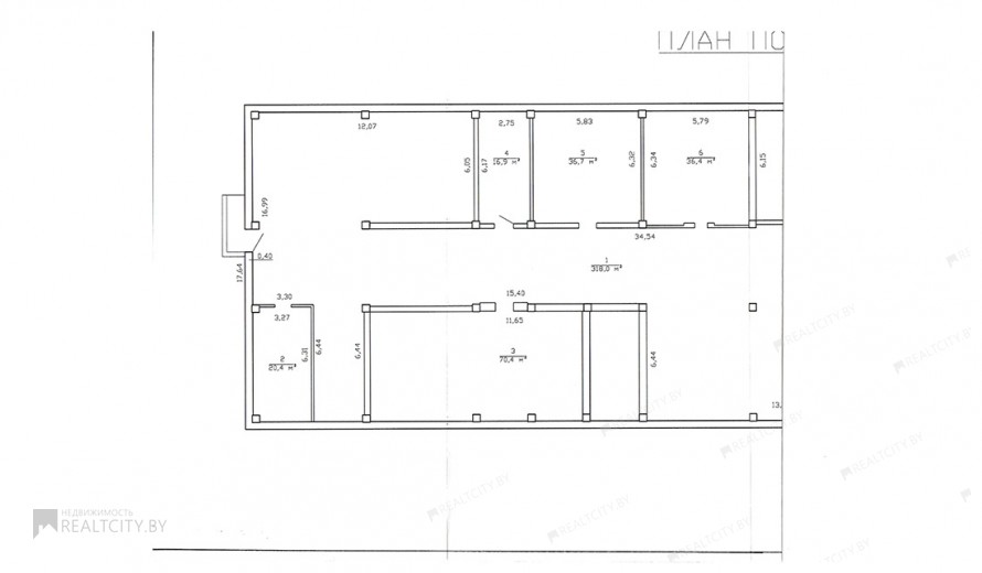
общ.пл. 3900 м.кв. в г.п. Плещеницы - Логойский р-н, Минская область.
Координаты: 54.421496, 27.88124/
Дополнительно:
✅ - продается здание под реконструкцию общ.пл. 3900 м.кв. в г.п. Плещеницы - Логойский р-н, Минская область.
✅ Отличная логистика. Расположено недалеко от трассы М3.
✅ Перед зданием парковка позади лес. Интересное предложение для развития гостиничного бизнеса.
✅ Возможен обмен на 2х-3х комнатную квартиру в Минске.
✅ От Минска строится новая бетонка скоростная
✅ ***Продажа от Собственника
Адрес: г. Минск, ул. Ольшевского 10, офис 2/А
E-mail: info@realtcity.by
Техподдержка
Тел: +375 (25) 772-05-61
E-mail: support@realtcity.by