Жилой фонд

аренда продажа

Нежилой фонд

аренда продажа
Расширенный поиск

1-комнатные

Жилой фонд 1-комнатные Продажа
Жилой фонд 1-комнатные Продажа
37900 $
дата: 29.11.2018
id: 325863
Контактное лицо
Лариса Р
Телефон

Расположение:

город
Минск
Область
Минская
Административный район
Московский
Улица
Коржа
Дом 6
Корпус 0

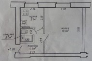
Параметры объекта:

Год постройки1957
Этаж1/3
Площадь (общ / жил / кух) 30.6 / 19.1 / 5.1
Количество комнат1
Домкирпич

Дополнительно:

телефон
санузел совмещённый
интернет

Цена метра: 1239 $

Квартира в центре города рядом с метро Грушевка, 2—3 остановки до вокзала и Немиги. Сталинка—высокие потолки и толстые кирпичные стены, железобетонные перекрытия. Квартира теплая и сухая. Окна на восток на зеленый двор. Высокий первый этаж, зал просторный почти квадратный с высоким потолком 2.85 м. Соседей не слышно. Квартира под ремонт. Агентам не звонить— уже есть свой агент.
Заказать звонок
Cервис информационных рассылок "Subscribe" ориентирован на спрос и предложения по недвижимости, подписаться можно по ссылке "ПОДПИСАТЬСЯ НА ЦЕЛЕВУЮ РАССЫЛКУ". Вы можете заказать рассылки на Свой e-mail по новым поступлениям и обновлениям практически всех видов недвижимости в разных регионах Республики Беларусь, Подписавшимся рассылка производится ежедневно и без выходных. Пожелания и замечания по работе сервиса "Subscribe" присылайте на адрес Subscribe@realtcity.by.