Жилой фонд

аренда продажа

Нежилой фонд

аренда продажа
Расширенный поиск

3-х комнатные

Жилой фонд 3-х комнатные Продажа
Жилой фонд 3-х комнатные Продажа
Жилой фонд 3-х комнатные Продажа
Жилой фонд 3-х комнатные Продажа
42000 $
дата: 01.09.2019
id: 327345
Контактное лицо
Марина Стурлис
Телефон

Расположение:

город
Сморгонь
Область
Гродненская
Административный район
Сморгонский
Улица
Якуба Коласа
Дом 113
Корпус 2

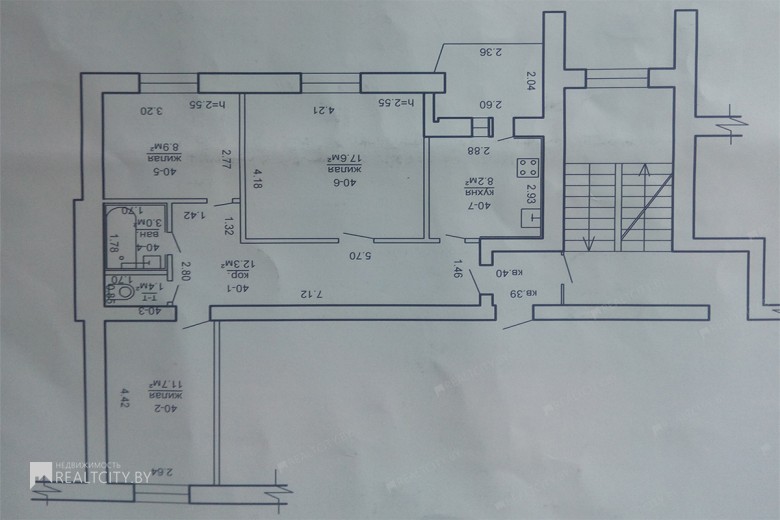
Параметры объекта:

Этаж5/5
Площадь (общ / жил / кух) 63.1 / 38.2 / 8.2
Количество комнат3
Домкирпич

Дополнительно:

телефон
санузел раздельный
отопление
ремонт
отделка
вода
электричество
газ
интернет

Цена метра: 666 $

Продается 3-х комнатная квартира в м-н Восточный .Дом кирпичный, квартира приватизирована. Ремонт, установлены стеклопакеты, межкомнатные двери, застекленный балкон, входная металлическая дверь, проведено оптоволокно, ,установлены счетчики воды, газа, домофон. Инфраструктура в шаговой доступности: школа, детский сад, т-ц Евроопт , ж/д станция и др.
Заказать звонок
Cервис информационных рассылок "Subscribe" ориентирован на спрос и предложения по недвижимости, подписаться можно по ссылке "ПОДПИСАТЬСЯ НА ЦЕЛЕВУЮ РАССЫЛКУ". Вы можете заказать рассылки на Свой e-mail по новым поступлениям и обновлениям практически всех видов недвижимости в разных регионах Республики Беларусь, Подписавшимся рассылка производится ежедневно и без выходных. Пожелания и замечания по работе сервиса "Subscribe" присылайте на адрес Subscribe@realtcity.by.