Жилой фонд

аренда продажа

Нежилой фонд

аренда продажа
Расширенный поиск

3-х комнатные

Жилой фонд 3-х комнатные Продажа
Жилой фонд 3-х комнатные Продажа
245000 $
дата: 22.03.2021
id: 331238
Контактное лицо
Александр
Телефон
E-mail

Расположение:

город
Минск
Область
Минская
Административный район
Первомайский
Улица
Жасминовая
Дом
Корпус 0

Параметры объекта:

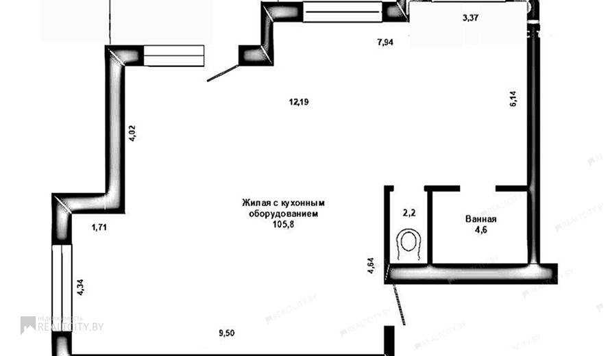
Год постройки2013
Этаж3/6
Площадь (общ / жил / кух) 112.6 / 105.8 / 0
Количество комнат1
Доммонолит

Дополнительно:

санузел раздельный
отопление
отделка
вода
электричество

Цена метра: 2176 $

Продается квартира. г. Минск, ул. Жасминовая, Первомайский район, станция м. Восток, расстояние ≈900м, (Московская линия) Дополнительно: - Фактически 3-комнатная квартира. Свободная планировка. По техпаспорту – 1 комнатная квартира. Металлическая дверь, стеклопакеты, стоянка автомобиля, домофон, зеленая зона, огороженная территория, свободная планировка, квартира для VIP.
Заказать звонок
Cервис информационных рассылок "Subscribe" ориентирован на спрос и предложения по недвижимости, подписаться можно по ссылке "ПОДПИСАТЬСЯ НА ЦЕЛЕВУЮ РАССЫЛКУ". Вы можете заказать рассылки на Свой e-mail по новым поступлениям и обновлениям практически всех видов недвижимости в разных регионах Республики Беларусь, Подписавшимся рассылка производится ежедневно и без выходных. Пожелания и замечания по работе сервиса "Subscribe" присылайте на адрес Subscribe@realtcity.by.