Жилой фонд

аренда продажа

Нежилой фонд

аренда продажа
Расширенный поиск

1-комнатные

Жилой фонд 1-комнатные Продажа
Жилой фонд 1-комнатные Продажа
Жилой фонд 1-комнатные Продажа
Жилой фонд 1-комнатные Продажа
Жилой фонд 1-комнатные Продажа
Жилой фонд 1-комнатные Продажа
Жилой фонд 1-комнатные Продажа
Жилой фонд 1-комнатные Продажа
Жилой фонд 1-комнатные Продажа
Жилой фонд 1-комнатные Продажа
73000 $
дата: 30.03.2021
id: 331440
Контактное лицо
Александр
Телефон

Расположение:

город
Минск
Область
Минская
Административный район
Московский
Проспект
Газеты Правда
Дом 15
Корпус 0

Параметры объекта:

Год постройки2013
Этаж20/25
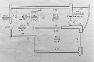
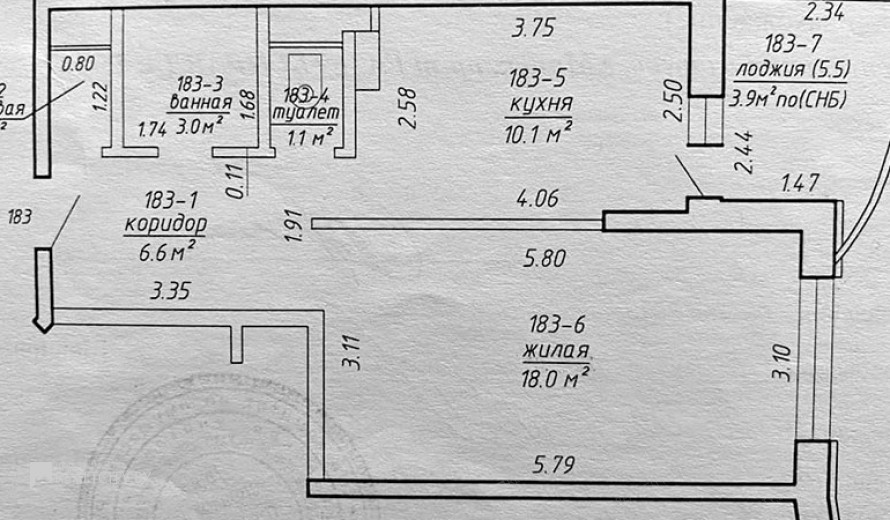
Площадь (общ / жил / кух) 43.7 / 18 / 10.1
Количество комнат1
Домблочный

Дополнительно:

санузел раздельный
мебель
отопление
ремонт
отделка
вода
электричество
интернет
бытовая техника

Цена метра: 1670 $

Продаётся 1-комнатная квартира в Московском районе города Минска по проспекту газеты Правды Дополнительно: мебель, встроенные шкафы, металлическая дверь, стеклопакеты, счетчики воды, бытовая техника, домофон, готова к проживанию, зеленая зона, новостройка Комфортная однокомнатная квартира в современном ЖК Московский квартал. Аккуратный ремонт. Встроенная кухня с бытовой техникой. В коридоре - большой шкаф-купе, кладовка - оборудована как дополнительный шкаф с функцией гардеробной. Лоджия - утеплена, установлена дополнительная стекольная рама со стеклопакетами, обустроена как спальня с большой кроватью. Дом современный, подъезд светлый, чистый, регулярно производится уборка, консьерж, 4 лифта (два грузовых). Двор благоустроен, велопарковка, детская площадка. Развитая инфраструктура, садики, школы/гимназии, магазины, аптеки, кафе...Рядом метро Петровщина, буквально 2 минуты.
Заказать звонок
Cервис информационных рассылок "Subscribe" ориентирован на спрос и предложения по недвижимости, подписаться можно по ссылке "ПОДПИСАТЬСЯ НА ЦЕЛЕВУЮ РАССЫЛКУ". Вы можете заказать рассылки на Свой e-mail по новым поступлениям и обновлениям практически всех видов недвижимости в разных регионах Республики Беларусь, Подписавшимся рассылка производится ежедневно и без выходных. Пожелания и замечания по работе сервиса "Subscribe" присылайте на адрес Subscribe@realtcity.by.