Жилой фонд

аренда продажа

Нежилой фонд

аренда продажа
Расширенный поиск

офис

Нежилой фонд офис Аренда
Нежилой фонд офис Аренда
Нежилой фонд офис Аренда
Нежилой фонд офис Аренда
Нежилой фонд офис Аренда
Нежилой фонд офис Аренда
416 €
Сумма % за весь срок кредита
 
Ежемесячный платеж (долг + %) в среднем
 
Данная информация является справочной. В МТБанке Вы можете получить кредит на развитие малого бизнеса в Беларуси. Получить кредит юридическое лицо или индивидуальный предприниматель может не только в Минске, но и ещё в 10 городах Республики.
дата: 20.01.2019
id: 326062
Контактное лицо
Олег Анатольевич
Телефон
E-mail

Расположение:

город
Минск
Область
Минская
Административный район
Фрунзенский
Улица
Жиновича
Дом 17
Корпус 0

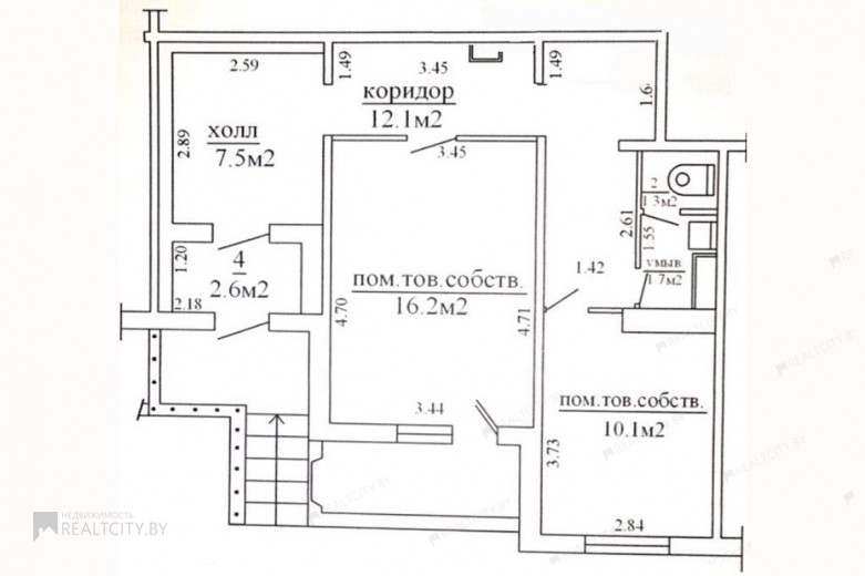
Параметры объекта:

Этаж1/0
Площадь (м2)52

Дополнительно:

телефон
санузел раздельный
освещение
отопление
ремонт
отделка
вода
электричество
интернет

Цена метра: 8 €

Помещение под офис, сферу услуг, магазин, - от 1 до 2 помещения, площадь 51.5 м², этаж 1 / 9, высота потолков 2.5 м, панельный, состояние дома: удовлетворительный ремонт, год постройки 2008, телефон - 2 телефона, естественное освещение, отопление, электричество, вода - есть, сан/узел - есть, юридический адрес, частная собственность, в жилом доме, отдельный вход, срочно. Требуется косметический ремонт. Тихое спокойное место для тихого спокойного бизнеса. Представляем юридические адреса для старта бизнесидей. Рядом отличный магазин «Виталюр» имеется парковка. Сделаем ремонт под ваши требования, рассмотрим любые предложения.
Заказать звонок
Cервис информационных рассылок "Subscribe" ориентирован на спрос и предложения по недвижимости, подписаться можно по ссылке "ПОДПИСАТЬСЯ НА ЦЕЛЕВУЮ РАССЫЛКУ". Вы можете заказать рассылки на Свой e-mail по новым поступлениям и обновлениям практически всех видов недвижимости в разных регионах Республики Беларусь, Подписавшимся рассылка производится ежедневно и без выходных. Пожелания и замечания по работе сервиса "Subscribe" присылайте на адрес Subscribe@realtcity.by.