Жилой фонд

аренда продажа

Нежилой фонд

аренда продажа
Расширенный поиск

офис

Нежилой фонд офис Аренда
Нежилой фонд офис Аренда
Нежилой фонд офис Аренда
Нежилой фонд офис Аренда
Нежилой фонд офис Аренда
Нежилой фонд офис Аренда
429 €
Сумма % за весь срок кредита
 
Ежемесячный платеж (долг + %) в среднем
 
Данная информация является справочной. В МТБанке Вы можете получить кредит на развитие малого бизнеса в Беларуси. Получить кредит юридическое лицо или индивидуальный предприниматель может не только в Минске, но и ещё в 10 городах Республики.
дата: 01.12.2020
id: 330428
Контактное лицо
Елена
Телефон

Расположение:

город
Минск
Область
Минская
Административный район
Центральный
Улица
Куйбышева
Дом 35
Корпус 0

Параметры объекта:

Этаж3/3
Площадь (м2)54

Дополнительно:

телефон
санузел раздельный
освещение
отопление
ремонт
отделка
вода
электричество
интернет

Цена метра: 8 €

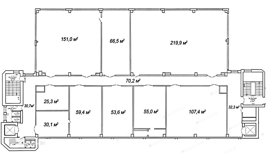
Сдаются в аренду офисные помещения 53,6 кв.м., 59,4 кв.м., 65 кв.м., 107 кв.м., 151 кв.м., 219 кв.м в Центральном районе Минска по улице Куйбышева, 35 Дополнительно: •планировка – open space •стены и потолки окрашены, полы бетонные •высокие потолки, большое количество окон •места общего пользования с полной отделкой и оснащением •все коммуникации Собственная прилегающая к зданию парковка (возможна организация отдельного заезда) Рядом большое количество объектов общественного питания, сферы услуг и развлечений, а также торговых объектов Наличие остановок городского общественного транспорта (11 маршрутов), в шаговой доступности станция метро «площадь Победы» (7 минут) ***Возможна поэтажная аренда (1 этаж – 357 м2, 2 этаж – 927 м2, 3 этаж – 868 м2), а также аренда всего блока (2977,4 м2)
Заказать звонок
Cервис информационных рассылок "Subscribe" ориентирован на спрос и предложения по недвижимости, подписаться можно по ссылке "ПОДПИСАТЬСЯ НА ЦЕЛЕВУЮ РАССЫЛКУ". Вы можете заказать рассылки на Свой e-mail по новым поступлениям и обновлениям практически всех видов недвижимости в разных регионах Республики Беларусь, Подписавшимся рассылка производится ежедневно и без выходных. Пожелания и замечания по работе сервиса "Subscribe" присылайте на адрес Subscribe@realtcity.by.