Жилой фонд

аренда продажа

Нежилой фонд

аренда продажа
Расширенный поиск

офис

Нежилой фонд офис Продажа
Нежилой фонд офис Продажа
Нежилой фонд офис Продажа
Нежилой фонд офис Продажа
Нежилой фонд офис Продажа
Нежилой фонд офис Продажа
Нежилой фонд офис Продажа
Нежилой фонд офис Продажа
90000 $
Сумма % за весь срок кредита
 
Ежемесячный платеж (долг + %) в среднем
 
Данная информация является справочной. В МТБанке Вы можете получить кредит на развитие малого бизнеса в Беларуси. Получить кредит юридическое лицо или индивидуальный предприниматель может не только в Минске, но и ещё в 10 городах Республики.
дата: 28.12.2021
id: 332441
Контактное лицо
Екатерина
Телефон

Расположение:

город
Минск
Область
Минская
Административный район
Заводской
Улица
Одесская
Дом 4
Корпус 0

Параметры объекта:

Этаж1/9
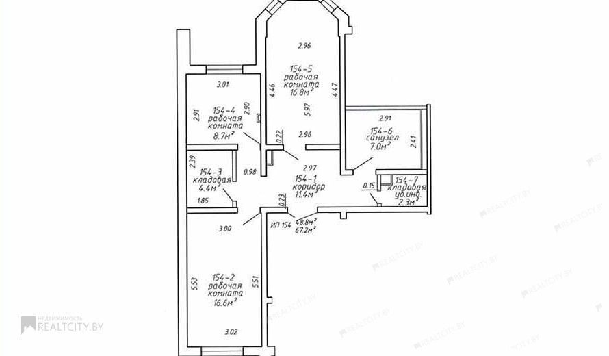
Площадь (м2)78
Количество комнат3
Домпанель

Дополнительно:

телефон
санузел раздельный
освещение
отопление
ремонт
отделка
вода
электричество
интернет

Цена метра: 1154 $

Продажа офиса в Заводском районе Минска по ул. Одесская, 4 - мкр-н ДК МАЗ. Дополнительно: - два санузла, в жилом доме, оживленное место. Продаётся помещение 78 кв.м Подходит под сферу услуг: салон красоты, турагенство, образовательные услуги, медицинские услуги, ветеринарные услуги.Рядом м.автозаводская, ДК МАЗМного новых домов, хорошее транспортное сообщениеМожно рассмотреть как готовый бизнес (детский развивающий центр).Все подробности по телефону ЕСТЬ ВОЗМОЖНОСТЬ РАССРОЧКИ.Агентствам НЕ беспокоить!!!!
Заказать звонок
Cервис информационных рассылок "Subscribe" ориентирован на спрос и предложения по недвижимости, подписаться можно по ссылке "ПОДПИСАТЬСЯ НА ЦЕЛЕВУЮ РАССЫЛКУ". Вы можете заказать рассылки на Свой e-mail по новым поступлениям и обновлениям практически всех видов недвижимости в разных регионах Республики Беларусь, Подписавшимся рассылка производится ежедневно и без выходных. Пожелания и замечания по работе сервиса "Subscribe" присылайте на адрес Subscribe@realtcity.by.