Жилой фонд

аренда продажа

Нежилой фонд

аренда продажа
Расширенный поиск

магазин

Нежилой фонд магазин Аренда
Нежилой фонд магазин Аренда
Нежилой фонд магазин Аренда
Нежилой фонд магазин Аренда
Нежилой фонд магазин Аренда
Нежилой фонд магазин Аренда
Нежилой фонд магазин Аренда
Нежилой фонд магазин Аренда
Нежилой фонд магазин Аренда
Нежилой фонд магазин Аренда
Нежилой фонд магазин Аренда
Нежилой фонд магазин Аренда
4360 €
Сумма % за весь срок кредита
 
Ежемесячный платеж (долг + %) в среднем
 
Данная информация является справочной. В МТБанке Вы можете получить кредит на развитие малого бизнеса в Беларуси. Получить кредит юридическое лицо или индивидуальный предприниматель может не только в Минске, но и ещё в 10 городах Республики.
дата: 09.06.2021
id: 325414
Контактное лицо
Владимир Иосифович
Агенство
Собственник
№ аттестата
Сайт
Телефон
E-mail

Расположение:

город
Минск
Область
Минская
Административный район
Фрунзенский
Улица
Пономаренко
Дом 34
Корпус 0

Параметры объекта:

Этаж1/0
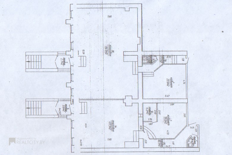
Площадь (м2)218

Дополнительно:

телефон
санузел раздельный

Цена метра: 20 €

2 помещения Минск Пономаренко, 34 пом. -2Н -встроенно-пристроенная часть к жилому дому (Угловое здание по ул.Бельского на Т образном перекрестке с Пономаренко) Этаж высокий цоколь (окна полноценные -1,2 м в высоту). общая площадь 217,5 м2. =25 евро за 1 м2. Разбито на две части с индивидуальными входами со стороны ул. Бельского. Первая часть - 88,8 м.кв. (сейчас магазин Живое Пиво Ерш). Вторая часть - 128,7 м.кв. На окнах, дверях роллеты; пожарно-охранная сигнализация; кондиционеры; экономное светодиодное освещение; индивидуальные счетчики учета воды, электронергии, тепла; полы-плитка грэс; потолки Армстронг. Перегородку между помещениями возможно демонтировать.
Заказать звонок
Cервис информационных рассылок "Subscribe" ориентирован на спрос и предложения по недвижимости, подписаться можно по ссылке "ПОДПИСАТЬСЯ НА ЦЕЛЕВУЮ РАССЫЛКУ". Вы можете заказать рассылки на Свой e-mail по новым поступлениям и обновлениям практически всех видов недвижимости в разных регионах Республики Беларусь, Подписавшимся рассылка производится ежедневно и без выходных. Пожелания и замечания по работе сервиса "Subscribe" присылайте на адрес Subscribe@realtcity.by.