Жилой фонд

аренда продажа

Нежилой фонд

аренда продажа
Расширенный поиск

здания

Нежилой фонд здания Продажа
Нежилой фонд здания Продажа
Нежилой фонд здания Продажа
Нежилой фонд здания Продажа
1483920 $
Сумма % за весь срок кредита
 
Ежемесячный платеж (долг + %) в среднем
 
Данная информация является справочной. В МТБанке Вы можете получить кредит на развитие малого бизнеса в Беларуси. Получить кредит юридическое лицо или индивидуальный предприниматель может не только в Минске, но и ещё в 10 городах Республики.
дата: 10.11.2020
id: 330324
Контактное лицо
Андрей Владимирович
Телефон

Расположение:

город
Минск
Область
Минская
Административный район
Советский
Улица
Цнянская
Дом 12
Корпус 0

Параметры объекта:

Этаж1/5
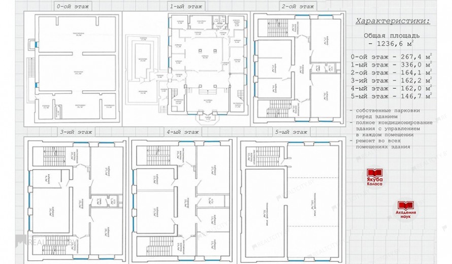
Площадь (м2)1237
Домкирпич

Дополнительно:

телефон
санузел раздельный
освещение
отопление
ремонт
вода
электричество
газ
интернет

Цена метра: 1200 $

Продается административное здание в Советском районе Минска площадью 1236.6 м.кв Дополнительно: кондиционер, в бизнес центре, отдельный вход, парковка, подъездные пути
Заказать звонок
Cервис информационных рассылок "Subscribe" ориентирован на спрос и предложения по недвижимости, подписаться можно по ссылке "ПОДПИСАТЬСЯ НА ЦЕЛЕВУЮ РАССЫЛКУ". Вы можете заказать рассылки на Свой e-mail по новым поступлениям и обновлениям практически всех видов недвижимости в разных регионах Республики Беларусь, Подписавшимся рассылка производится ежедневно и без выходных. Пожелания и замечания по работе сервиса "Subscribe" присылайте на адрес Subscribe@realtcity.by.